Erweiterung eines EFH zum Mehrgenerationenhaus

Auftrag
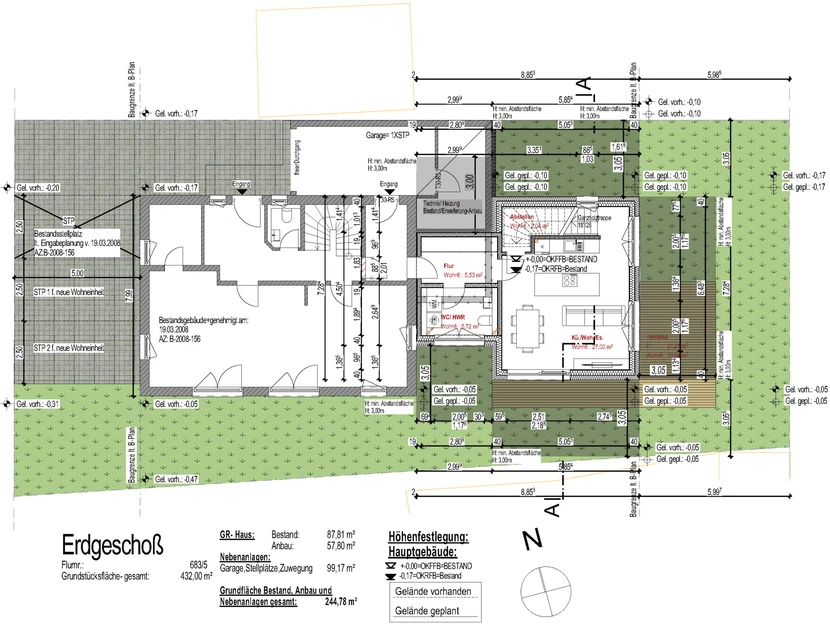
Bauvorlage
Ort
Mainburg
Wohnungen/-fläche
Eine Wohneinheit mit ca. 100 m² Wohnfläche
Kubatur
ca. 550 m³
Ausführung
Erstellung 2025

Ziel war es, eine zweite Wohneinheit auf dem Grundstück mit einem vorhandenen Einfamilienhaus zu schaffen. Der Hintergrund dafür war, Mehrgenerationenwohnen in Zukunft zu ermöglichen. In diesem Fall ist der Anbau für die Eltern geplant, während das bestehende Einfamilienhaus Platz für eine zukünftige Familie bietet. Da das Grundstück nicht allzu groß ist, wurde der Anbau mit einem Gründach versehen, um die Flächenversiegelung zu kompensieren.

3D-Ansicht von Süden, Haus mit Anbau
3D-Ansicht von Süden, Haus mit Anbau
2D-Ansicht von Süden, Haus mit Anbau
2D-Ansicht von Süden, Haus mit Anbau
Plan Grundstücksfläche
Bauvorlage

Zurück