Planung Einfamilienhaus in Rehling

Auftrag
Erarbeiten des Entwurfs und der Bauvorlage
Ort
Rehling
Wohnfläche
ca. 170 m²
Kubatur
750 m³
Ausführung
2023

Einfamilienhaus in Holzständerbauweise auf Bodenplatte

3D-Ansicht
3D-Ansicht
2D-Ansichten
2D-Ansichten
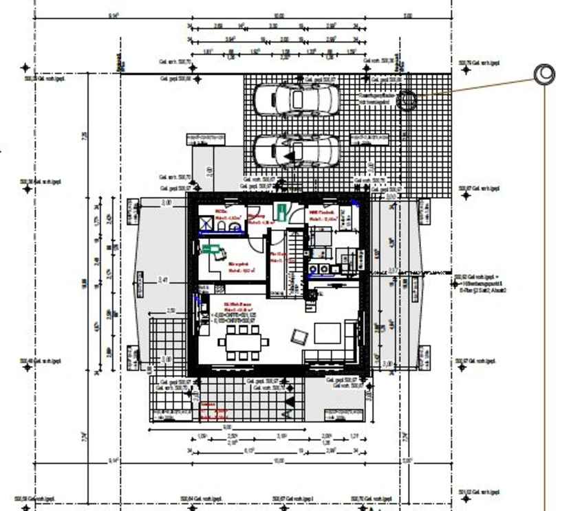
Grundruss EG
Grundriss Erdgeschoss

Zurück